the project

Donate Now!

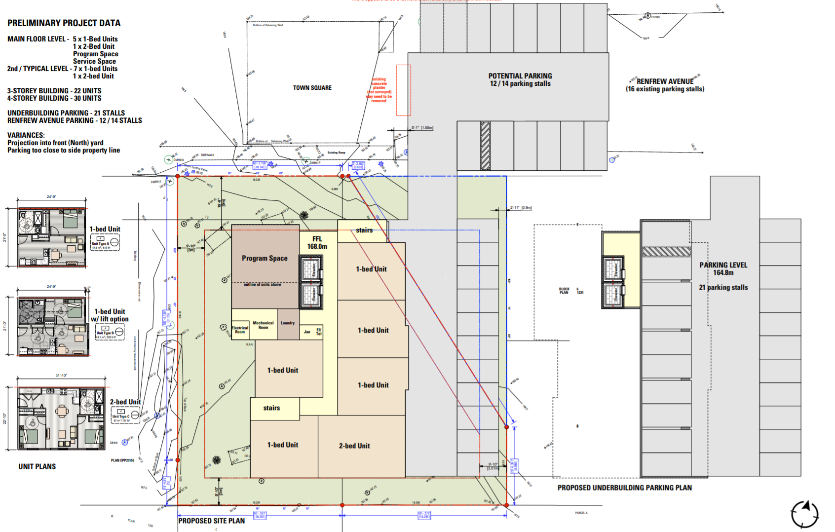
A new 4 story 30 unit facility providing affordable housing for those 55+. The finished project will provide 4 Two Bedroom and 26 One Bedroom suites.